Faire construire
votre Maison de 72 m2
à Surin (79220)
- Surface : 72 m2
- Nombre de pièces : 3
- Nombre de chambres : 2
- Garage : oui
- Surface du terrain : 1 135 m2
- Lotissement : non
Réf. TMFV0029692FD7CF33
199 345 €
Simulez votre crédit immobilier
ou
Votre mensualité sera de
€/mois
Montant de votre prêt
€
Coût assurance €
* avec une épargne conseillée de €
* Simulation hors PTZ* CAN 25 000 € et 1 500 € d'apport, hors Prêt Action Logement de 30 000 € à 1,5 % et hors PTZ National. *Prêt à Taux Zéro.
Les coûts sont estimés en fonction des caractéristiques de votre logement et pour une utilisation standard sur 5 usages : chauffage, eau chaude sanitaire, climatisation, éclairage, auxiliaires.
entre
390 €
et
550 €
par an

obtenus par méthode Th-BCE 2012, estimées au logement, prix moyen des énergies indexés au 1er janvier 2021
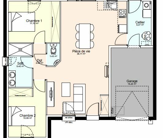
Maison de plain-pied de 72 m² habitables et 15 m² de garage.
Elle se compose de 2 chambres et d’un bel espace de vie séjour / salon / cuisine, lumineux et fonctionnel.
Le plan est modulable afin de s’adapter à vos besoins et à votre mode de vie.
Maison basse consommation conforme à la réglementation RE 2020, pour un confort optimal et des économies d’énergie.
Informations du terrain : Le terrain est situé dans le village de Surin dans le département des Deux-Sèvres . Le village de Surin appartient à l'arrondissement de Niort et au canton de Champdeniers-Saint-Denis. Le terrain est situé à 25mn de Niort et à 30mn de Parthenay.
Habiter à Surin, 79220, Deux-Sèvres
Maisons du Marais, constructeur de maisons individuelles en 79, à Surin
Maisons du Marais Niort
4, rue M. Luther King
Espace Mendès France II
79000 Niort
Tél. 05 49 33 22 11
-
Maison 87 m2 avec terrain 1 135 m2
3 chambres
SURIN - 79
205 993 € -
Maison 90 m2 avec terrain 1 135 m2
3 chambres
SURIN - 79
210 484 € -
Maison 71 m2 avec terrain 1 135 m2
2 chambres
SURIN - 79
164 751 € -
Maison 89 m2 avec terrain 1 135 m2
3 chambres
SURIN - 79
198 840 €
Cette offre maison avec terrain à Surin (79220) a retenu votre attention.
Renseignez le formulaire ci-contre :
Je souhaite être contacté au sujet de l’annonce réf. TMFV0029692FD7CF33 concernant une offre maison avec terrain à Surin. Voici mes coordonnées :
