Faire construire
votre Maison de 72 m2
à Villiers-en-Plaine (79160)
- Surface : 72 m2
- Nombre de pièces : 3
- Nombre de chambres : 2
- Garage : oui
- Surface du terrain : 511 m2
- Lotissement : non
Réf. TMFV0029690D5D9D2A
193 300 €
Simulez votre crédit immobilier
ou
Votre mensualité sera de
€/mois
Montant de votre prêt
€
Coût assurance €
* avec une épargne conseillée de €
* Simulation hors PTZ* CAN 25 000 € et 1 500 € d'apport, hors Prêt Action Logement de 30 000 € à 1,5 % et hors PTZ National. *Prêt à Taux Zéro.
Les coûts sont estimés en fonction des caractéristiques de votre logement et pour une utilisation standard sur 5 usages : chauffage, eau chaude sanitaire, climatisation, éclairage, auxiliaires.
entre
390 €
et
550 €
par an

obtenus par méthode Th-BCE 2012, estimées au logement, prix moyen des énergies indexés au 1er janvier 2021
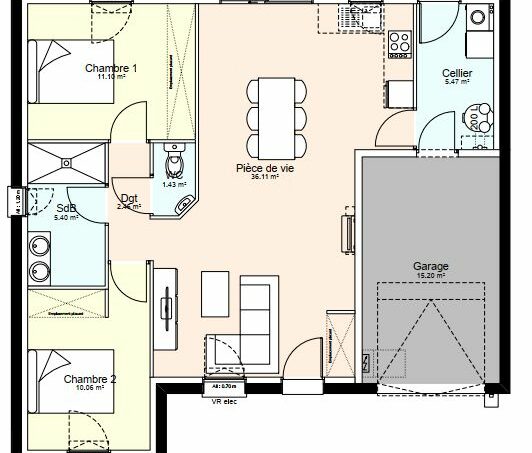
Maison de plain-pied de 72 m² habitables et 15 m² de garage.
Elle se compose de 2 chambres et d’un bel espace de vie séjour / salon / cuisine, lumineux et fonctionnel.
Le plan est modulable afin de s’adapter à vos besoins et à votre mode de vie.
Maison basse consommation conforme à la réglementation RE 2020, pour un confort optimal et des économies d’énergie.
Informations du terrain : Situé dans un lotissement intimiste de seulement 7 parcelles viabilisées, ce terrain vous offre un cadre paisible et paysager, idéal pour construire votre future maison.
À seulement 10 minutes à pied des commerces, écoles et services du centre-bourg : boulangerie, supérette, pharmacie, pôle santé, crèche et école, et 12 minutes de Niort, vous profitez d’un environnement privilégié entre nature et vie de village.
Un emplacement parfait pour allier sérénité et praticité au quotidien.
D’autres terrains sont disponibles sur ce lotissement, contactez-nous pour en savoir plus !
Habiter à Villiers-en-Plaine, 79160, Deux-Sèvres
Maisons du Marais, constructeur de maisons individuelles en 79, à Villiers-en-Plaine
Maisons du Marais Niort
4, rue M. Luther King
Espace Mendès France II
79000 Niort
Tél. 05 49 33 22 11
-
Maison 89 m2 avec terrain 511 m2
3 chambres
VILLIERS-EN-PLAINE - 79
189 795 € -
Maison 81 m2 avec terrain 900 m2
3 chambres
VILLIERS-EN-PLAINE - 79
190 344 € -
Maison 71 m2 avec terrain 900 m2
2 chambres
VILLIERS-EN-PLAINE - 79
180 816 € -
Maison 72 m2 avec terrain 511 m2
2 chambres
VILLIERS-EN-PLAINE - 79
193 300 €
Cette offre maison avec terrain à Villiers-en-Plaine (79160) a retenu votre attention.
Renseignez le formulaire ci-contre :
Je souhaite être contacté au sujet de l’annonce réf. TMFV0029690D5D9D2A concernant une offre maison avec terrain à Villiers-en-Plaine. Voici mes coordonnées :
