Faire construire
votre Maison de 89 m2
à Villiers-en-Plaine (79160)
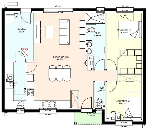
- Surface : 89 m2
- Nombre de pièces : 4
- Nombre de chambres : 2
- Garage : oui
- Surface du terrain : 517 m2
- Lotissement : non
Réf. TMFV00296975B57942
182 500 €
Simulez votre crédit immobilier
ou
Votre mensualité sera de
€/mois
Montant de votre prêt
€
Coût assurance €
* avec une épargne conseillée de €
* Simulation hors PTZ* CAN 25 000 € et 1 500 € d'apport, hors Prêt Action Logement de 30 000 € à 1,5 % et hors PTZ National. *Prêt à Taux Zéro.
Les coûts sont estimés en fonction des caractéristiques de votre logement et pour une utilisation standard sur 5 usages : chauffage, eau chaude sanitaire, climatisation, éclairage, auxiliaires.
entre
390 €
et
550 €
par an

obtenus par méthode Th-BCE 2012, estimées au logement, prix moyen des énergies indexés au 1er janvier 2021
Maison de plain-pied de 89 m² habitables.
Elle se compose de 2 chambres et d’un bel espace de vie séjour / salon / cuisine, lumineux et fonctionnel.
Le plan est modulable afin de s’adapter à vos besoins et à votre mode de vie.
Maison basse consommation RE 2020, pour un confort optimal et des économies d’énergie.
Informations du terrain : Au cœur du lotissement Les Jardins de la Plaine 1, composé de 7 terrains prêts à bâtir, cette parcelle séduit par son calme et son cadre paysager.
Entre nature et vie de village, vous profiterez de tous les services essentiels à pied et d’un accès rapide à Niort, à seulement quelques minutes en voiture.
Un lieu idéal pour bâtir une maison à votre image, dans une commune conviviale et dynamique.
D’autres terrains sont disponibles sur ce lotissement, contactez-nous pour plus d’informations !
Habiter à Villiers-en-Plaine, 79160, Deux-Sèvres
Maisons du Marais, constructeur de maisons individuelles en 79, à Villiers-en-Plaine
Maisons du Marais Niort
4, rue M. Luther King
Espace Mendès France II
79000 Niort
Tél. 05 49 33 22 11
-
Maison 83 m2 avec terrain 511 m2
3 chambres
VILLIERS-EN-PLAINE - 79
199 300 € -
Maison 79 m2 avec terrain 446 m2
3 chambres
VILLIERS-EN-PLAINE - 79
151 473 € -
Maison 89 m2 avec terrain 532 m2
3 chambres
VILLIERS-EN-PLAINE - 79
175 764 € -
Maison 89 m2 avec terrain 2 053 m2
3 chambres
VILLIERS-EN-PLAINE - 79
177 864 €
Cette offre maison avec terrain à Villiers-en-Plaine (79160) a retenu votre attention.
Renseignez le formulaire ci-contre :
Je souhaite être contacté au sujet de l’annonce réf. TMFV00296975B57942 concernant une offre maison avec terrain à Villiers-en-Plaine. Voici mes coordonnées :
