Faire construire
votre Maison de 89 m2
à Villiers-en-Plaine (79160)
- Surface : 89 m2
- Nombre de pièces : 4
- Nombre de chambres : 2
- Garage : oui
- Surface du terrain : 511 m2
- Lotissement : non
Réf. TMFV002969B32380F1
181 300 €
Simulez votre crédit immobilier
ou
Votre mensualité sera de
€/mois
Montant de votre prêt
€
Coût assurance €
* avec une épargne conseillée de €
* Simulation hors PTZ* CAN 25 000 € et 1 500 € d'apport, hors Prêt Action Logement de 30 000 € à 1,5 % et hors PTZ National. *Prêt à Taux Zéro.
Les coûts sont estimés en fonction des caractéristiques de votre logement et pour une utilisation standard sur 5 usages : chauffage, eau chaude sanitaire, climatisation, éclairage, auxiliaires.
entre
390 €
et
550 €
par an

obtenus par méthode Th-BCE 2012, estimées au logement, prix moyen des énergies indexés au 1er janvier 2021
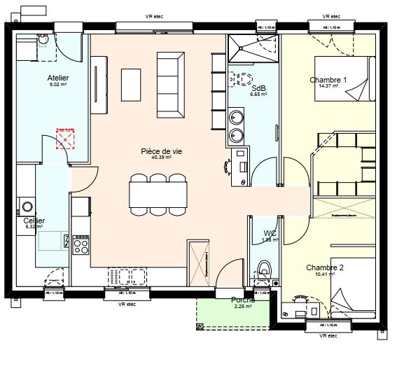
Maison de plain-pied de 89 m² habitables.
Elle se compose de 2 chambres et d’un bel espace de vie séjour / salon / cuisine, lumineux et fonctionnel.
Le plan est modulable afin de s’adapter à vos besoins et à votre mode de vie.
Maison basse consommation RE 2020, pour un confort optimal et des économies d’énergie.
Informations du terrain : Situé dans un lotissement intimiste de seulement 7 parcelles viabilisées, ce terrain vous offre un cadre paisible et paysager, idéal pour construire votre future maison.
À seulement 10 minutes à pied des commerces, écoles et services du centre-bourg : boulangerie, supérette, pharmacie, pôle santé, crèche et école, et 12 minutes de Niort, vous profitez d’un environnement privilégié entre nature et vie de village.
Un emplacement parfait pour allier sérénité et praticité au quotidien.
D’autres terrains sont disponibles sur ce lotissement, contactez-nous pour en savoir plus !
Habiter à Villiers-en-Plaine, 79160, Deux-Sèvres
Maisons du Marais, constructeur de maisons individuelles en 79, à Villiers-en-Plaine
Maisons du Marais Niort
4, rue M. Luther King
Espace Mendès France II
79000 Niort
Tél. 05 49 33 22 11
-
Maison 83 m2 avec terrain 511 m2
3 chambres
VILLIERS-EN-PLAINE - 79
199 300 € -
Maison 79 m2 avec terrain 446 m2
3 chambres
VILLIERS-EN-PLAINE - 79
151 473 € -
Maison 89 m2 avec terrain 532 m2
3 chambres
VILLIERS-EN-PLAINE - 79
175 764 € -
Maison 89 m2 avec terrain 2 053 m2
3 chambres
VILLIERS-EN-PLAINE - 79
177 864 €
Cette offre maison avec terrain à Villiers-en-Plaine (79160) a retenu votre attention.
Renseignez le formulaire ci-contre :
Je souhaite être contacté au sujet de l’annonce réf. TMFV002969B32380F1 concernant une offre maison avec terrain à Villiers-en-Plaine. Voici mes coordonnées :
