Faire construire
votre Maison de 92 m2
à Villedoux (17230)
- Surface : 92 m2
- Nombre de pièces : 4
- Nombre de chambres : 3
- Garage : oui
- Surface du terrain : 243 m2
- Lotissement : non
Réf. TMMB002978AFA6E10C
220 500 €
Simulez votre crédit immobilier
ou
Votre mensualité sera de
€/mois
Montant de votre prêt
€
Coût assurance €
* avec une épargne conseillée de €
* Simulation hors PTZ* CAN 25 000 € et 1 500 € d'apport, hors Prêt Action Logement de 30 000 € à 1,5 % et hors PTZ National. *Prêt à Taux Zéro.
Les coûts sont estimés en fonction des caractéristiques de votre logement et pour une utilisation standard sur 5 usages : chauffage, eau chaude sanitaire, climatisation, éclairage, auxiliaires.
entre
420 €
et
630 €
par an

obtenus par méthode Th-BCE 2012, estimées au logement, prix moyen des énergies indexés au 1er janvier 2021
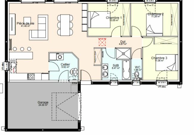
Maison de plain-pied de 92 m² habitables et 24m² de garage.
Elle se compose de 3 chambres et d’un bel espace de vie séjour / salon / cuisine, lumineux et fonctionnel.
Le plan est modulable afin de s’adapter à vos besoins et à votre mode de vie.
Maison basse consommation RE 2020, pour un confort optimal et des économies d’énergie.
Habiter à Villedoux, 17230, Charente-Maritime
Maisons du Marais, constructeur de maisons individuelles en 17, à Villedoux
Maisons du Marais La Rochelle
Résidence AZUREA
55 Boulevard Joffre
17000 La Rochelle
Tél. 05 46 30 38 80
-
Maison 89 m2 avec terrain 275 m2
3 chambres
VILLEDOUX - 17
231 095 € -
Maison 89 m2 avec terrain 275 m2
3 chambres
VILLEDOUX - 17
215 464 € -
Maison 93 m2 avec terrain 275 m2
4 chambres
VILLEDOUX - 17
224 943 € -
Maison 79 m2 avec terrain 275 m2
3 chambres
VILLEDOUX - 17
205 206 €
Cette offre maison avec terrain à Villedoux (17230) a retenu votre attention.
Renseignez le formulaire ci-contre :
Je souhaite être contacté au sujet de l’annonce réf. TMMB002978AFA6E10C concernant une offre maison avec terrain à Villedoux. Voici mes coordonnées :
