Faire construire
votre Maison de 92 m2
à Saint-Lin (79420)
- Surface : 92 m2
- Nombre de pièces : 4
- Nombre de chambres : 3
- Garage : oui
- Surface du terrain : 833 m2
- Lotissement : non
Réf. TMFV0029690AF2F622
179 868 €
Simulez votre crédit immobilier
ou
Votre mensualité sera de
€/mois
Montant de votre prêt
€
Coût assurance €
* avec une épargne conseillée de €
* Simulation hors PTZ* CAN 25 000 € et 1 500 € d'apport, hors Prêt Action Logement de 30 000 € à 1,5 % et hors PTZ National. *Prêt à Taux Zéro.
Les coûts sont estimés en fonction des caractéristiques de votre logement et pour une utilisation standard sur 5 usages : chauffage, eau chaude sanitaire, climatisation, éclairage, auxiliaires.
entre
420 €
et
630 €
par an

obtenus par méthode Th-BCE 2012, estimées au logement, prix moyen des énergies indexés au 1er janvier 2021
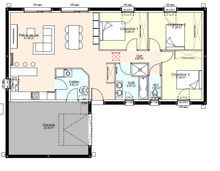
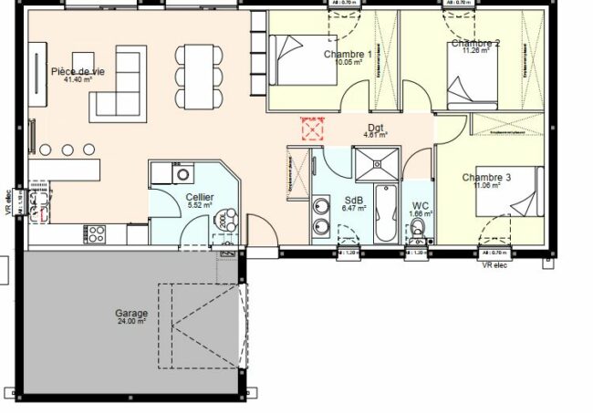
Maison de plain-pied de 92 m² habitables et 24m² de garage.
Elle se compose de 3 chambres et d’un bel espace de vie séjour / salon / cuisine, lumineux et fonctionnel.
Le plan est modulable afin de s’adapter à vos besoins et à votre mode de vie.
Maison basse consommation RE 2020, pour un confort optimal et des économies d’énergie.
Informations du terrain : Magnifique terrain constructible proche de Verruyes et Mazières en Gâtines dans un lieu calme.
Habiter à Saint-Lin, 79420, Deux-Sèvres
Maisons du Marais, constructeur de maisons individuelles en 79, à Saint-Lin
Maisons du Marais Niort
4, rue M. Luther King
Espace Mendès France II
79000 Niort
Tél. 05 49 33 22 11
-
Maison 90 m2 avec terrain 558 m2
3 chambres
SAINT-LIN - 79
175 108 € -
Maison 89 m2 avec terrain 558 m2
3 chambres
SAINT-LIN - 79
168 464 € -
Maison 87 m2 avec terrain 558 m2
3 chambres
SAINT-LIN - 79
170 617 € -
Maison 79 m2 avec terrain 558 m2
3 chambres
SAINT-LIN - 79
136 004 €
Cette offre maison avec terrain à Saint-Lin (79420) a retenu votre attention.
Renseignez le formulaire ci-contre :
Je souhaite être contacté au sujet de l’annonce réf. TMFV0029690AF2F622 concernant une offre maison avec terrain à Saint-Lin. Voici mes coordonnées :
