Faire construire
votre Maison de 71 m2
à Prahecq (79230)
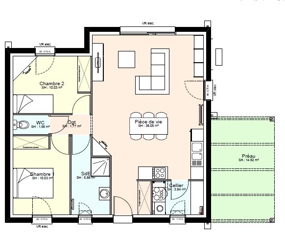
- Surface : 71 m2
- Nombre de pièces : 3
- Nombre de chambres : 2
- Garage : oui
- Surface du terrain : 412 m2
- Lotissement : non
Réf. TMFV002969AD0F10DE
150 916 €
Simulez votre crédit immobilier
ou
Votre mensualité sera de
€/mois
Montant de votre prêt
€
Coût assurance €
* avec une épargne conseillée de €
* Simulation hors PTZ* CAN 25 000 € et 1 500 € d'apport, hors Prêt Action Logement de 30 000 € à 1,5 % et hors PTZ National. *Prêt à Taux Zéro.
Les coûts sont estimés en fonction des caractéristiques de votre logement et pour une utilisation standard sur 5 usages : chauffage, eau chaude sanitaire, climatisation, éclairage, auxiliaires.
entre
390 €
et
550 €
par an

obtenus par méthode Th-BCE 2012, estimées au logement, prix moyen des énergies indexés au 1er janvier 2021
Maison RDC de 71 m² habitables ( Option préau de 15m² possible ) . Maison 2 chambres avec un séjour salon cuisine de 38m². Plan modulable. Maison basse consommation RE 2020, chauffage avec rafraichissement . Contactez nous pour plus d'informations.
Informations du terrain : Situé dans un lotissement intimiste de seulement 10 parcelles, cette parcelle vous offre un cadre idéal pour construire votre future maison.
Vous bénéficierez du calme et d'un environnement paysagé, tout en étant à deux pas des commerces du centre-bourg : boulangerie, supérette, cabinet médical, pharmacie, ainsi que des écoles et du collège.
Un emplacement parfait pour allier sérénité et praticité au quotidien.
D'autres parcelles sont disponibles sur ce lotissement, contactez-nous pour en savoir plus !
Habiter à Prahecq, 79230, Deux-Sèvres
Maisons du Marais, constructeur de maisons individuelles en 79, à Prahecq
Maisons du Marais Niort
4, rue M. Luther King
Espace Mendès France II
79000 Niort
Tél. 05 49 33 22 11
-
Maison 71 m2 avec terrain 371 m2
2 chambres
PRAHECQ - 79
158 000 € -
Maison 89 m2 avec terrain 331 m2
3 chambres
AIFFRES - 79
218 658 € -
Maison 79 m2 avec terrain 338 m2
3 chambres
AIFFRES - 79
162 303 € -
Maison 90 m2 avec terrain 338 m2
3 chambres
AIFFRES - 79
208 769 €
Cette offre maison avec terrain à Prahecq (79230) a retenu votre attention.
Renseignez le formulaire ci-contre :
Je souhaite être contacté au sujet de l’annonce réf. TMFV002969AD0F10DE concernant une offre maison avec terrain à Prahecq. Voici mes coordonnées :
