Faire construire
votre Maison de 71 m2
à Oulmes (85420)
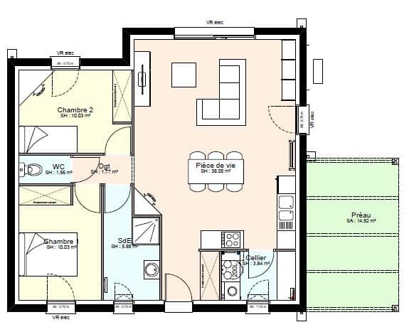
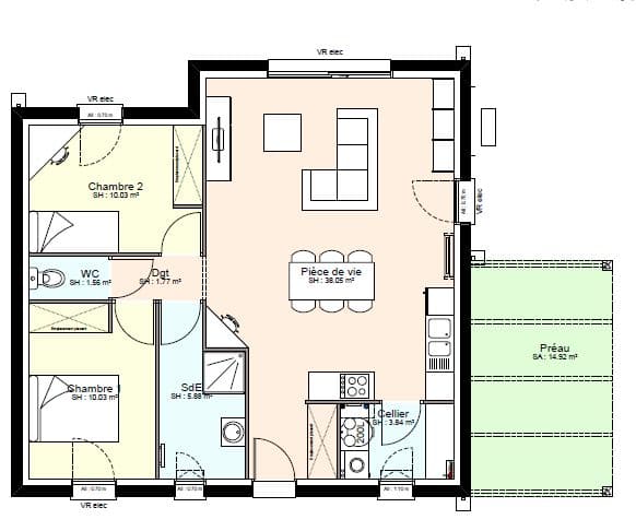
- Surface : 71 m2
- Nombre de pièces : 3
- Nombre de chambres : 2
- Garage : oui
- Surface du terrain : 702 m2
- Lotissement : non
Réf. TMMG00297565C13E84
134 000 €
Simulez votre crédit immobilier
ou
Votre mensualité sera de
€/mois
Montant de votre prêt
€
Coût assurance €
* avec une épargne conseillée de €
* Simulation hors PTZ* CAN 25 000 € et 1 500 € d'apport, hors Prêt Action Logement de 30 000 € à 1,5 % et hors PTZ National. *Prêt à Taux Zéro.
Les coûts sont estimés en fonction des caractéristiques de votre logement et pour une utilisation standard sur 5 usages : chauffage, eau chaude sanitaire, climatisation, éclairage, auxiliaires.
entre
390 €
et
550 €
par an

obtenus par méthode Th-BCE 2012, estimées au logement, prix moyen des énergies indexés au 1er janvier 2021
Maison RDC de 71 m² habitables ( Option préau de 15m² possible ) . Maison 2 chambres avec un séjour salon cuisine de 38m². Plan modulable. Maison basse consommation RE 2020, chauffage avec rafraichissement . Contactez nous pour plus d'informations..;
Habiter à Oulmes, 85420, Vendée
Maisons du Marais, constructeur de maisons individuelles en 85, à Oulmes
Maisons du Marais Fontenay-le-Comte
Av du Gal De Gaulle
2 Chemin de la Baraque
85200 Fontenay-le-Comte
Tél. 02 28 13 09 13
-
Maison 89 m2 avec terrain 702 m2
3 chambres
OULMES - 85
175 395 € -
Maison 89 m2 avec terrain 702 m2
3 chambres
OULMES - 85
159 764 € -
Maison 93 m2 avec terrain 702 m2
4 chambres
OULMES - 85
167 488 € -
Maison 79 m2 avec terrain 702 m2
3 chambres
OULMES - 85
147 935 €
Cette offre maison avec terrain à Oulmes (85420) a retenu votre attention.
Renseignez le formulaire ci-contre :
Je souhaite être contacté au sujet de l’annonce réf. TMMG00297565C13E84 concernant une offre maison avec terrain à Oulmes. Voici mes coordonnées :
