Faire construire
votre Maison de 71 m2
à Niort (79000)
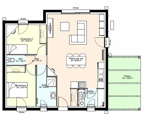
- Surface : 71 m2
- Nombre de pièces : 3
- Nombre de chambres : 2
- Garage : oui
- Surface du terrain : 396 m2
- Lotissement : non
Réf. TMES002969779033BD
169 916 €
Simulez votre crédit immobilier
ou
Votre mensualité sera de
€/mois
Montant de votre prêt
€
Coût assurance €
* avec une épargne conseillée de €
* Simulation hors PTZ* CAN 25 000 € et 1 500 € d'apport, hors Prêt Action Logement de 30 000 € à 1,5 % et hors PTZ National. *Prêt à Taux Zéro.
Les coûts sont estimés en fonction des caractéristiques de votre logement et pour une utilisation standard sur 5 usages : chauffage, eau chaude sanitaire, climatisation, éclairage, auxiliaires.
entre
390 €
et
550 €
par an

obtenus par méthode Th-BCE 2012, estimées au logement, prix moyen des énergies indexés au 1er janvier 2021
Maison RDC de 71 m² habitables ( Option préau de 15m² possible ) . Maison 2 chambres avec un séjour salon cuisine de 38m². Plan modulable. Maison basse consommation RE 2020, chauffage avec rafraichissement . Contactez nous pour plus d'informations.
Informations du terrain : A Niort, dans un cadre paysager préservé, parcelle viabilisée de 396 m² bénéficiant d'une orientation sud à l'arrière, idéale pour votre projet de construction.
Un emplacement de choix à 10 minutes en vélo du centre-ville de Niort, 5 minutes en voiture de Mendès France. Vous profitez des commerces de proximité, des écoles et collèges accessibles à pied en 10 minutes !
Une grande variété de lots sont disponibles sur ce lotissement, contactez-nous pour en savoir plus.
Habiter à Niort, 79000, Deux-Sèvres
Maisons du Marais, constructeur de maisons individuelles en 79, à Niort
Maisons du Marais Niort
4, rue M. Luther King
Espace Mendès France II
79000 Niort
Tél. 05 49 33 22 11
-
Maison 87 m2 avec terrain 660 m2
3 chambres
NIORT - 79
237 848 € -
Maison 71 m2 avec terrain 660 m2
2 chambres
NIORT - 79
189 517 € -
Maison 79 m2 avec terrain 673 m2
3 chambres
NIORT - 79
202 035 € -
Maison 93 m2 avec terrain 660 m2
4 chambres
NIORT - 79
224 543 €
Cette offre maison avec terrain à Niort (79000) a retenu votre attention.
Renseignez le formulaire ci-contre :
Je souhaite être contacté au sujet de l’annonce réf. TMES002969779033BD concernant une offre maison avec terrain à Niort. Voici mes coordonnées :
