Faire construire
votre Maison de 72 m2
à Mauzé-sur-le-Mignon (79210)
- Surface : 72 m2
- Nombre de pièces : 3
- Nombre de chambres : 2
- Garage : oui
- Surface du terrain : 559 m2
- Lotissement : non
Réf. TMMB0029780342E69B
221 400 €
Simulez votre crédit immobilier
ou
Votre mensualité sera de
€/mois
Montant de votre prêt
€
Coût assurance €
* avec une épargne conseillée de €
* Simulation hors PTZ* CAN 25 000 € et 1 500 € d'apport, hors Prêt Action Logement de 30 000 € à 1,5 % et hors PTZ National. *Prêt à Taux Zéro.
Les coûts sont estimés en fonction des caractéristiques de votre logement et pour une utilisation standard sur 5 usages : chauffage, eau chaude sanitaire, climatisation, éclairage, auxiliaires.
entre
390 €
et
550 €
par an

obtenus par méthode Th-BCE 2012, estimées au logement, prix moyen des énergies indexés au 1er janvier 2021
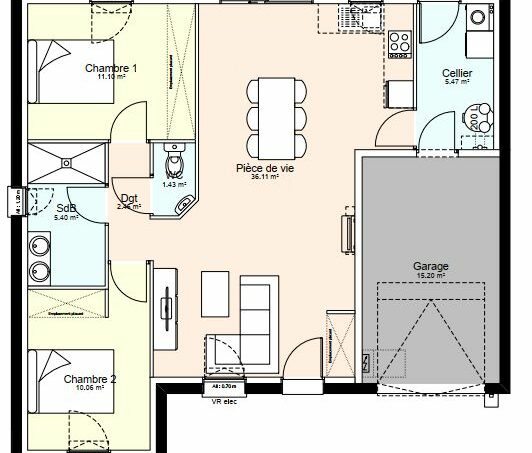
Maison de plain-pied de 72 m² habitables et 15 m² de garage.
Elle se compose de 2 chambres et d’un bel espace de vie séjour / salon / cuisine, lumineux et fonctionnel.
Le plan est modulable afin de s’adapter à vos besoins et à votre mode de vie.
Maison basse consommation conforme à la réglementation RE 2020, pour un confort optimal et des économies d’énergie.
Informations du terrain : Belle exposition pour cette jolie parcelle.
Habiter à Mauzé-sur-le-Mignon, 79210, Deux-Sèvres
Maisons du Marais, constructeur de maisons individuelles en 79, à Mauzé-sur-le-Mignon
Maisons du Marais La Rochelle
Résidence AZUREA
55 Boulevard Joffre
17000 La Rochelle
Tél. 05 46 30 38 80
-
Maison 72 m2 avec terrain 559 m2
2 chambres
MAUZÉ-SUR-LE-MIGNON - 79
221 400 € -
Maison 93 m2 avec terrain 473 m2
4 chambres
MAUZÉ-SUR-LE-MIGNON - 79
190 888 € -
Maison 93 m2 avec terrain 473 m2
4 chambres
MAUZÉ-SUR-LE-MIGNON - 79
202 488 € -
Maison 89 m2 avec terrain 473 m2
3 chambres
MAUZÉ-SUR-LE-MIGNON - 79
215 395 €
Cette offre maison avec terrain à Mauzé-sur-le-Mignon (79210) a retenu votre attention.
Renseignez le formulaire ci-contre :
Je souhaite être contacté au sujet de l’annonce réf. TMMB0029780342E69B concernant une offre maison avec terrain à Mauzé-sur-le-Mignon. Voici mes coordonnées :
