Faire construire
votre Maison de 72 m2
à Marigny (79360)
- Surface : 72 m2
- Nombre de pièces : 3
- Nombre de chambres : 2
- Garage : oui
- Surface du terrain : 642 m2
- Lotissement : non
Réf. TMFV0029694601DB03
182 816 €
Simulez votre crédit immobilier
ou
Votre mensualité sera de
€/mois
Montant de votre prêt
€
Coût assurance €
* avec une épargne conseillée de €
* Simulation hors PTZ* CAN 25 000 € et 1 500 € d'apport, hors Prêt Action Logement de 30 000 € à 1,5 % et hors PTZ National. *Prêt à Taux Zéro.
Les coûts sont estimés en fonction des caractéristiques de votre logement et pour une utilisation standard sur 5 usages : chauffage, eau chaude sanitaire, climatisation, éclairage, auxiliaires.
entre
390 €
et
550 €
par an

obtenus par méthode Th-BCE 2012, estimées au logement, prix moyen des énergies indexés au 1er janvier 2021
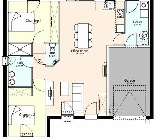
Maison de plain-pied de 72 m² habitables et 15 m² de garage.
Elle se compose de 2 chambres et d’un bel espace de vie séjour / salon / cuisine, lumineux et fonctionnel.
Le plan est modulable afin de s’adapter à vos besoins et à votre mode de vie.
Maison basse consommation conforme à la réglementation RE 2020, pour un confort optimal et des économies d’énergie.
Informations du terrain : Situé dans un lotissement paisible de la commune de Marigny, ce terrain entièrement viabilisé offre un cadre idéal pour concrétiser votre projet de construction. Le terrain dispose de tous les raccordements nécessaires (eau, électricité, télécoms) et est raccordable au tout-à-l’égout, un véritable atout pour votre futur confort. Vous apprécierez son environnement calme et agréable, parfait pour une vie familiale sereine. Pour plus d’informations ou organiser une visite, n’hésitez pas à me contacter.
Habiter à Marigny, 79360, Deux-Sèvres
Maisons du Marais, constructeur de maisons individuelles en 79, à Marigny
Maisons du Marais Niort
4, rue M. Luther King
Espace Mendès France II
79000 Niort
Tél. 05 49 33 22 11
-
Maison 93 m2 avec terrain 480 m2
4 chambres
MARIGNY - 79
168 383 € -
Maison 93 m2 avec terrain 490 m2
4 chambres
MARIGNY - 79
168 863 € -
Maison 71 m2 avec terrain 490 m2
2 chambres
MARIGNY - 79
133 837 € -
Maison 71 m2 avec terrain 480 m2
2 chambres
MARIGNY - 79
133 357 €
Cette offre maison avec terrain à Marigny (79360) a retenu votre attention.
Renseignez le formulaire ci-contre :
Je souhaite être contacté au sujet de l’annonce réf. TMFV0029694601DB03 concernant une offre maison avec terrain à Marigny. Voici mes coordonnées :
