Faire construire
votre Maison de 96 m2
à L'Houmeau (17137)
- Surface : 96 m2
- Nombre de pièces : 5
- Nombre de chambres : 3
- Garage : oui
- Surface du terrain : 323 m2
- Lotissement : non
Réf. TMMD002978B0140D12
335 000 €
Simulez votre crédit immobilier
ou
Votre mensualité sera de
€/mois
Montant de votre prêt
€
Coût assurance €
* avec une épargne conseillée de €
* Simulation hors PTZ* CAN 25 000 € et 1 500 € d'apport, hors Prêt Action Logement de 30 000 € à 1,5 % et hors PTZ National. *Prêt à Taux Zéro.
Les coûts sont estimés en fonction des caractéristiques de votre logement et pour une utilisation standard sur 5 usages : chauffage, eau chaude sanitaire, climatisation, éclairage, auxiliaires.
entre
420 €
et
630 €
par an

obtenus par méthode Th-BCE 2012, estimées au logement, prix moyen des énergies indexés au 1er janvier 2021
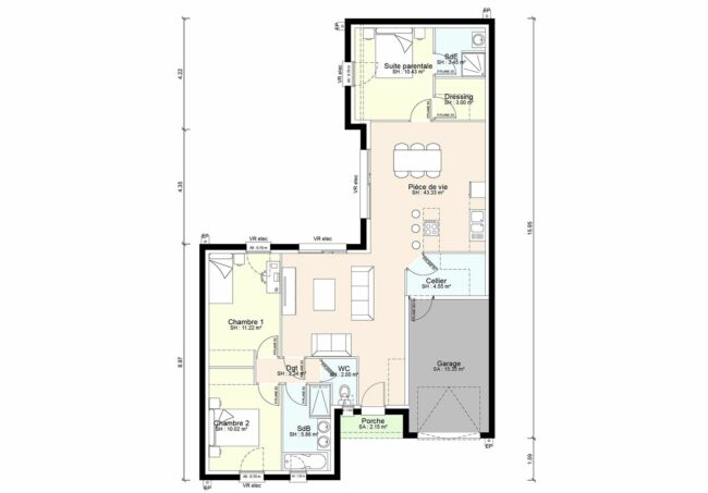
Classique et fonctionnelle ! Votre maison plain-pied à partir de 96 m2 habitable vous apporte une grande pièce de vie de 43 m2 avec cellier isolé, cuisine et coin repas attenant. Salon indépendant. 2 grandes baies coulissantes exposées sur la terrasse arrière vous offrent luminosité et confort. Vous disposez de 3 chambres dont une avec une salle d’eau toute équipée avec meuble vasque et douche. La salle de bain est aménagée avec meuble 2 vasques, une grande douche et une baignoire. Garage attenant de 15 m2. Orientation salon et pièce de vie principale exposées sur la terrasse à l’arrière. Carrelage grand format compris dans toute les pièces (hors chambres) et faïence au choix dans une large gamme disponible.
Habiter à L'Houmeau, 17137, Charente-Maritime
Maisons du Marais, constructeur de maisons individuelles en 17, à L'Houmeau
Maisons du Marais La Rochelle
Résidence AZUREA
55 Boulevard Joffre
17000 La Rochelle
Tél. 05 46 30 38 80
-
Maison 96 m2 avec terrain 323 m2
3 chambres
L'HOUMEAU - 17
335 000 € -
Maison 93 m2 avec terrain 323 m2
4 chambres
L'HOUMEAU - 17
295 343 € -
Maison 90 m2 avec terrain 323 m2
3 chambres
L'HOUMEAU - 17
313 139 € -
Maison 96 m2 avec terrain 323 m2
3 chambres
L'HOUMEAU - 17
335 000 €
Cette offre maison avec terrain à L'Houmeau (17137) a retenu votre attention.
Renseignez le formulaire ci-contre :
Je souhaite être contacté au sujet de l’annonce réf. TMMD002978B0140D12 concernant une offre maison avec terrain à L'Houmeau. Voici mes coordonnées :
