Faire construire
votre Maison de 83 m2
à Fors (79230)
- Surface : 83 m2
- Nombre de pièces : 4
- Nombre de chambres : 3
- Garage : oui
- Surface du terrain : 618 m2
- Lotissement : non
Réf. TMFV002969BC9C4F36
226 576 €
Simulez votre crédit immobilier
ou
Votre mensualité sera de
€/mois
Montant de votre prêt
€
Coût assurance €
* avec une épargne conseillée de €
* Simulation hors PTZ* CAN 25 000 € et 1 500 € d'apport, hors Prêt Action Logement de 30 000 € à 1,5 % et hors PTZ National. *Prêt à Taux Zéro.
Les coûts sont estimés en fonction des caractéristiques de votre logement et pour une utilisation standard sur 5 usages : chauffage, eau chaude sanitaire, climatisation, éclairage, auxiliaires.
entre
390 €
et
550 €
par an

obtenus par méthode Th-BCE 2012, estimées au logement, prix moyen des énergies indexés au 1er janvier 2021
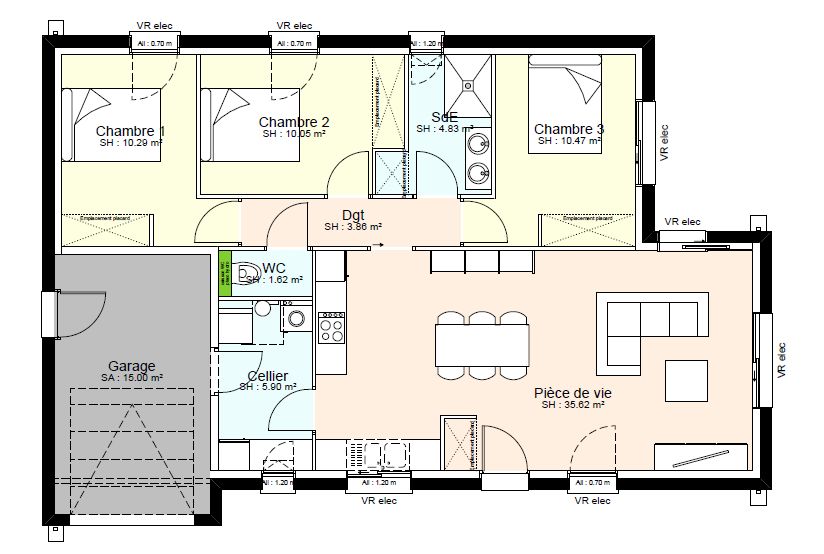
Maison RDC de 83 m² habitables et 15m² de garage. Maison 3 chambres avec un séjour salon cuisine de 35m². Plan modulable. Maison basse consommation RE 2020, chauffage plancher chauffant. Contactez nous pour plus d'informations.
Habiter à Fors, 79230, Deux-Sèvres
Maisons du Marais, constructeur de maisons individuelles en 79, à Fors
Maisons du Marais Niort
4, rue M. Luther King
Espace Mendès France II
79000 Niort
Tél. 05 49 33 22 11
-
Maison 89 m2 avec terrain 618 m2
3 chambres
FORS - 79
196 495 € -
Maison 81 m2 avec terrain 618 m2
3 chambres
FORS - 79
183 044 € -
Maison 87 m2 avec terrain 618 m2
3 chambres
FORS - 79
222 148 € -
Maison 133 m2 avec terrain 618 m2
5 chambres
FORS - 79
329 228 €
Cette offre maison avec terrain à Fors (79230) a retenu votre attention.
Renseignez le formulaire ci-contre :
Je souhaite être contacté au sujet de l’annonce réf. TMFV002969BC9C4F36 concernant une offre maison avec terrain à Fors. Voici mes coordonnées :
