Faire construire
votre Maison de 81 m2
à Coulon (79510)
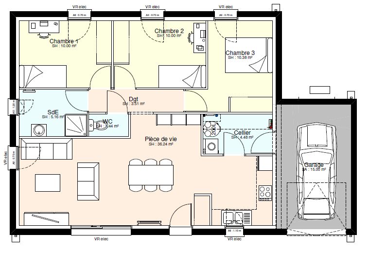
- Surface : 81 m2
- Nombre de pièces : 4
- Nombre de chambres : 3
- Garage : non
- Surface du terrain : 597 m2
- Lotissement : non
Réf. TMFV00296989B408FE
175 044 €
Simulez votre crédit immobilier
ou
Votre mensualité sera de
€/mois
Montant de votre prêt
€
Coût assurance €
* avec une épargne conseillée de €
* Simulation hors PTZ* CAN 25 000 € et 1 500 € d'apport, hors Prêt Action Logement de 30 000 € à 1,5 % et hors PTZ National. *Prêt à Taux Zéro.
Les coûts sont estimés en fonction des caractéristiques de votre logement et pour une utilisation standard sur 5 usages : chauffage, eau chaude sanitaire, climatisation, éclairage, auxiliaires.
entre
390 €
et
550 €
par an

obtenus par méthode Th-BCE 2012, estimées au logement, prix moyen des énergies indexés au 1er janvier 2021
Maison RDC de 81m² habitables ( Option garage de 15m² possible ) . Maison 3 chambres avec un séjour salon cuisine de 36m². Plan modulable. Maison basse consommation RE 2020, chauffage avec rafraichissement . Contactez nous pour plus d'informations.
Informations du terrain : Terrain situé à Coulon commune du Marais Poitevin , dans un secteur calme et à 20mn de Niort.
Habiter à Coulon, 79510, Deux-Sèvres
Maisons du Marais, constructeur de maisons individuelles en 79, à Coulon
Maisons du Marais Niort
4, rue M. Luther King
Espace Mendès France II
79000 Niort
Tél. 05 49 33 22 11
-
Maison 90 m2 avec terrain 597 m2
3 chambres
COULON - 79
210 639 € -
Maison 89 m2 avec terrain 597 m2
3 chambres
COULON - 79
183 364 € -
Maison 83 m2 avec terrain 597 m2
3 chambres
COULON - 79
215 576 € -
Maison 71 m2 avec terrain 597 m2
2 chambres
COULON - 79
157 516 €
Cette offre maison avec terrain à Coulon (79510) a retenu votre attention.
Renseignez le formulaire ci-contre :
Je souhaite être contacté au sujet de l’annonce réf. TMFV00296989B408FE concernant une offre maison avec terrain à Coulon. Voici mes coordonnées :
