Faire construire
votre Maison de 71 m2
à Chauray (79180)
- Surface : 71 m2
- Nombre de pièces : 3
- Nombre de chambres : 2
- Garage : oui
- Surface du terrain : 685 m2
- Lotissement : non
Réf. TMFV0029694C77A1C8
205 016 €
Simulez votre crédit immobilier
ou
Votre mensualité sera de
€/mois
Montant de votre prêt
€
Coût assurance €
* avec une épargne conseillée de €
* Simulation hors PTZ* CAN 25 000 € et 1 500 € d'apport, hors Prêt Action Logement de 30 000 € à 1,5 % et hors PTZ National. *Prêt à Taux Zéro.
Les coûts sont estimés en fonction des caractéristiques de votre logement et pour une utilisation standard sur 5 usages : chauffage, eau chaude sanitaire, climatisation, éclairage, auxiliaires.
entre
390 €
et
550 €
par an

obtenus par méthode Th-BCE 2012, estimées au logement, prix moyen des énergies indexés au 1er janvier 2021
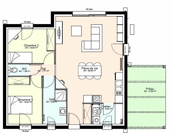
Maison RDC de 71 m² habitables ( Option préau de 15m² possible ) . Maison 2 chambres avec un séjour salon cuisine de 38m². Plan modulable. Maison basse consommation RE 2020, chauffage avec rafraichissement . Contactez nous pour plus d'informations.
Informations du terrain : A Chauray, proche centre-bourg, belle surface de 685 m² pour cette parcelle entièrement viabilisée. Orientation traversante Est/Ouest, idéale pour votre projet de construction.
Habiter à Chauray, 79180, Deux-Sèvres
Maisons du Marais, constructeur de maisons individuelles en 79, à Chauray
Maisons du Marais Niort
4, rue M. Luther King
Espace Mendès France II
79000 Niort
Tél. 05 49 33 22 11
-
Maison 83 m2 avec terrain 379 m2
1 chambres
CHAURAY - 79
235 361 € -
Maison 68 m2 avec terrain 379 m2
2 chambres
CHAURAY - 79
203 000 € -
Maison 72 m2 avec terrain 685 m2
2 chambres
CHAURAY - 79
249 000 € -
Maison 71 m2 avec terrain 685 m2
2 chambres
CHAURAY - 79
205 016 €
Cette offre maison avec terrain à Chauray (79180) a retenu votre attention.
Renseignez le formulaire ci-contre :
Je souhaite être contacté au sujet de l’annonce réf. TMFV0029694C77A1C8 concernant une offre maison avec terrain à Chauray. Voici mes coordonnées :
