Faire construire
votre Maison de 83 m2
à Champdeniers-Saint-Denis (79220)
- Surface : 83 m2
- Nombre de pièces : 4
- Nombre de chambres : 3
- Garage : oui
- Surface du terrain : 619 m2
- Lotissement : non
Réf. TMFV0029690413ED84
199 597 €
Simulez votre crédit immobilier
ou
Votre mensualité sera de
€/mois
Montant de votre prêt
€
Coût assurance €
* avec une épargne conseillée de €
* Simulation hors PTZ* CAN 25 000 € et 1 500 € d'apport, hors Prêt Action Logement de 30 000 € à 1,5 % et hors PTZ National. *Prêt à Taux Zéro.
Les coûts sont estimés en fonction des caractéristiques de votre logement et pour une utilisation standard sur 5 usages : chauffage, eau chaude sanitaire, climatisation, éclairage, auxiliaires.
entre
390 €
et
550 €
par an

obtenus par méthode Th-BCE 2012, estimées au logement, prix moyen des énergies indexés au 1er janvier 2021
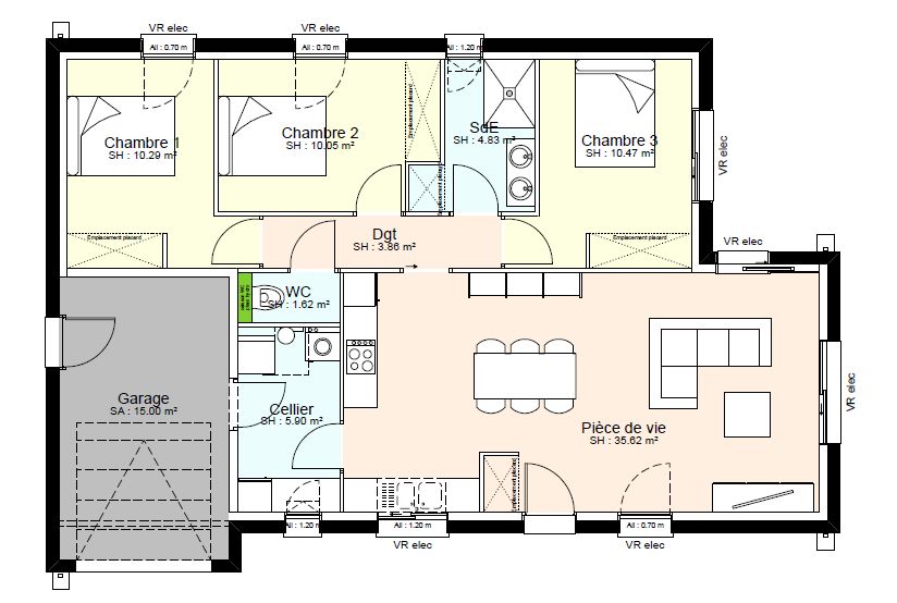
Maison RDC de 83 m² habitables et 15m² de garage. Maison 3 chambres avec un séjour salon cuisine de 35m². Plan modulable. Maison basse consommation RE 2020, chauffage plancher chauffant. Contactez nous pour plus d'informations.
Informations du terrain : Situé dans un lotissement paisible de la commune de Champdeniers, ce terrain entièrement viabilisé offre un cadre idéal pour concrétiser votre projet de construction. Le terrain dispose de tous les raccordements nécessaires (eau, électricité, télécoms), un véritable atout pour votre futur confort. Vous apprécierez son environnement calme et agréable, parfait pour une vie familiale sereine. Pour plus d’informations ou organiser une visite, n’hésitez pas à me contacter.
Habiter à Champdeniers-Saint-Denis, 79220, Deux-Sèvres
Maisons du Marais, constructeur de maisons individuelles en 79, à Champdeniers-Saint-Denis
Maisons du Marais Niort
4, rue M. Luther King
Espace Mendès France II
79000 Niort
Tél. 05 49 33 22 11
-
Maison 90 m2 avec terrain 575 m2
3 chambres
CHAMPDENIERS-SAINT-DENIS - 79
197 064 € -
Maison 72 m2 avec terrain 649 m2
2 chambres
CHAMPDENIERS-SAINT-DENIS - 79
198 000 € -
Maison 83 m2 avec terrain 714 m2
3 chambres
CHAMPDENIERS-SAINT-DENIS - 79
213 404 € -
Maison 133 m2 avec terrain 714 m2
5 chambres
CHAMPDENIERS-SAINT-DENIS - 79
306 056 €
Cette offre maison avec terrain à Champdeniers-Saint-Denis (79220) a retenu votre attention.
Renseignez le formulaire ci-contre :
Je souhaite être contacté au sujet de l’annonce réf. TMFV0029690413ED84 concernant une offre maison avec terrain à Champdeniers-Saint-Denis. Voici mes coordonnées :
