Faire construire
votre Maison de 81 m2
à Chaillé-les-Marais (85450)
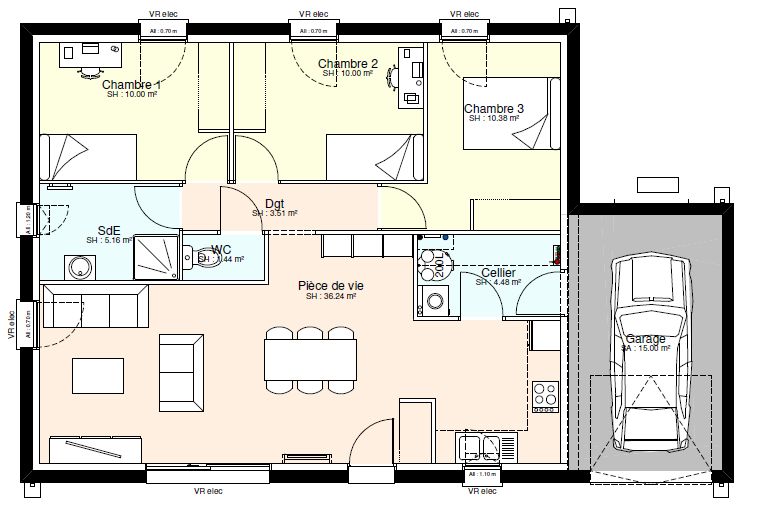
- Surface : 81 m2
- Nombre de pièces : 4
- Nombre de chambres : 3
- Garage : non
- Surface du terrain : 449 m2
- Lotissement : non
Réf. TMMG002975F31A9242
163 723 €
Simulez votre crédit immobilier
ou
Votre mensualité sera de
€/mois
Montant de votre prêt
€
Coût assurance €
* avec une épargne conseillée de €
* Simulation hors PTZ* CAN 25 000 € et 1 500 € d'apport, hors Prêt Action Logement de 30 000 € à 1,5 % et hors PTZ National. *Prêt à Taux Zéro.
Les coûts sont estimés en fonction des caractéristiques de votre logement et pour une utilisation standard sur 5 usages : chauffage, eau chaude sanitaire, climatisation, éclairage, auxiliaires.
entre
390 €
et
550 €
par an

obtenus par méthode Th-BCE 2012, estimées au logement, prix moyen des énergies indexés au 1er janvier 2021
Maison RDC de 81m² habitables ( Option garage de 15m² possible ) . Maison 3 chambres avec un séjour salon cuisine de 36m². Plan modulable. Maison basse consommation RE 2020, chauffage avec rafraichissement . Contactez nous pour plus d'informations.
Informations du terrain : Terrain bien placé proche des commerces, à 30 mn de LAGORD/LA ROCHELLE
Prix incluant assurance dommages-ouvrage, VRD compris, terrain viabilisé, assainissement compris, frais de notaire compris, taxes non comprises, frais divers non compris. Terrain sous réserve de disponibilité de notre partenaire foncier. Images non contractuelles.
Habiter à Chaillé-les-Marais, 85450, Vendée
Maisons du Marais, constructeur de maisons individuelles en 85, à Chaillé-les-Marais
Maisons du Marais Fontenay-le-Comte
Av du Gal De Gaulle
2 Chemin de la Baraque
85200 Fontenay-le-Comte
Tél. 02 28 13 09 13
-
Maison 79 m2 avec terrain 449 m2
3 chambres
CHAILLÉ-LES-MARAIS - 85
165 000 € -
Maison 88 m2 avec terrain 449 m2
3 chambres
CHAILLÉ-LES-MARAIS - 85
186 403 € -
Maison 90 m2 avec terrain 449 m2
3 chambres
CHAILLÉ-LES-MARAIS - 85
204 000 € -
Maison 87 m2 avec terrain 449 m2
3 chambres
CHAILLÉ-LES-MARAIS - 85
202 827 €
Cette offre maison avec terrain à Chaillé-les-Marais (85450) a retenu votre attention.
Renseignez le formulaire ci-contre :
Je souhaite être contacté au sujet de l’annonce réf. TMMG002975F31A9242 concernant une offre maison avec terrain à Chaillé-les-Marais. Voici mes coordonnées :
