Faire construire
votre Maison de 72 m2
à Brioux-sur-Boutonne (79170)
- Surface : 72 m2
- Nombre de pièces : 3
- Nombre de chambres : 2
- Garage : oui
- Surface du terrain : 401 m2
- Lotissement : non
Réf. TMFV0029694097CFB1
182 550 €
Simulez votre crédit immobilier
ou
Votre mensualité sera de
€/mois
Montant de votre prêt
€
Coût assurance €
* avec une épargne conseillée de €
* Simulation hors PTZ* CAN 25 000 € et 1 500 € d'apport, hors Prêt Action Logement de 30 000 € à 1,5 % et hors PTZ National. *Prêt à Taux Zéro.
Les coûts sont estimés en fonction des caractéristiques de votre logement et pour une utilisation standard sur 5 usages : chauffage, eau chaude sanitaire, climatisation, éclairage, auxiliaires.
entre
390 €
et
550 €
par an

obtenus par méthode Th-BCE 2012, estimées au logement, prix moyen des énergies indexés au 1er janvier 2021
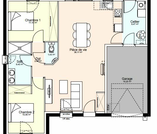
Maison de plain-pied de 72 m² habitables et 15 m² de garage.
Elle se compose de 2 chambres et d’un bel espace de vie séjour / salon / cuisine, lumineux et fonctionnel.
Le plan est modulable afin de s’adapter à vos besoins et à votre mode de vie.
Maison basse consommation conforme à la réglementation RE 2020, pour un confort optimal et des économies d’énergie.
Informations du terrain : Terrain viabilisé situé à Brioux-sur-Boutonne. Brioux-sur-Boutonne est située dans le Sud du département des Deux-Sèvres (79). Située à 30 km de Niort, la ville dépend de la Communauté de communes Mellois en Poitou.
Habiter à Brioux-sur-Boutonne, 79170, Deux-Sèvres
Maisons du Marais, constructeur de maisons individuelles en 79, à Brioux-sur-Boutonne
Maisons du Marais Niort
4, rue M. Luther King
Espace Mendès France II
79000 Niort
Tél. 05 49 33 22 11
-
Maison 87 m2 avec terrain 320 m2
3 chambres
BRIOUX-SUR-BOUTONNE - 79
185 148 € -
Maison 87 m2 avec terrain 320 m2
3 chambres
BRIOUX-SUR-BOUTONNE - 79
185 148 € -
Maison 89 m2 avec terrain 320 m2
3 chambres
BRIOUX-SUR-BOUTONNE - 79
182 995 € -
Maison 89 m2 avec terrain 320 m2
3 chambres
BRIOUX-SUR-BOUTONNE - 79
182 995 €
Cette offre maison avec terrain à Brioux-sur-Boutonne (79170) a retenu votre attention.
Renseignez le formulaire ci-contre :
Je souhaite être contacté au sujet de l’annonce réf. TMFV0029694097CFB1 concernant une offre maison avec terrain à Brioux-sur-Boutonne. Voici mes coordonnées :
