Faire construire
votre Maison de 71 m2
à Aiffres (79230)
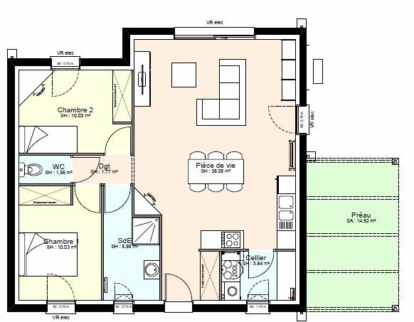
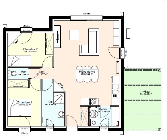
- Surface : 71 m2
- Nombre de pièces : 3
- Nombre de chambres : 2
- Garage : oui
- Surface du terrain : 425 m2
- Lotissement : non
Réf. TMFV002969DCC3A8E9
185 516 €
Simulez votre crédit immobilier
ou
Votre mensualité sera de
€/mois
Montant de votre prêt
€
Coût assurance €
* avec une épargne conseillée de €
* Simulation hors PTZ* CAN 25 000 € et 1 500 € d'apport, hors Prêt Action Logement de 30 000 € à 1,5 % et hors PTZ National. *Prêt à Taux Zéro.
Les coûts sont estimés en fonction des caractéristiques de votre logement et pour une utilisation standard sur 5 usages : chauffage, eau chaude sanitaire, climatisation, éclairage, auxiliaires.
entre
390 €
et
550 €
par an

obtenus par méthode Th-BCE 2012, estimées au logement, prix moyen des énergies indexés au 1er janvier 2021
Maison RDC de 71 m² habitables ( Option préau de 15m² possible ) . Maison 2 chambres avec un séjour salon cuisine de 38m². Plan modulable. Maison basse consommation RE 2020, chauffage avec rafraichissement . Contactez nous pour plus d'informations.
Informations du terrain : 10 Mn du centre de Niort , Terrain situé à Aiffres proche des commerces et des axes de circulation.
Habiter à Aiffres, 79230, Deux-Sèvres
Maisons du Marais, constructeur de maisons individuelles en 79, à Aiffres
Maisons du Marais Niort
4, rue M. Luther King
Espace Mendès France II
79000 Niort
Tél. 05 49 33 22 11
-
Maison 97 m2 avec terrain 331 m2
4 chambres
AIFFRES - 79
231 806 € -
Maison 87 m2 avec terrain 338 m2
3 chambres
AIFFRES - 79
204 278 € -
Maison 87 m2 avec terrain 331 m2
3 chambres
AIFFRES - 79
220 811 € -
Maison 89 m2 avec terrain 331 m2
3 chambres
AIFFRES - 79
213 658 €
Cette offre maison avec terrain à Aiffres (79230) a retenu votre attention.
Renseignez le formulaire ci-contre :
Je souhaite être contacté au sujet de l’annonce réf. TMFV002969DCC3A8E9 concernant une offre maison avec terrain à Aiffres. Voici mes coordonnées :
