Faire construire
votre Maison de 71 m2
à Vouillé (79230)
					
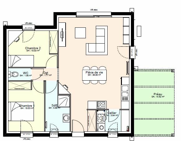
					- Surface : 71 m2
 - Nombre de pièces : 3
 - Nombre de chambres : 2
 - Garage : oui
 - Surface du terrain : 429 m2
 - Lotissement : non
 
Réf. TMFV002969679D1800
161 496 €
Simulez votre crédit immobilier
ou
Votre mensualité sera de
€/mois
Montant de votre prêt
€
Coût assurance €
* avec une épargne conseillée de €
* Simulation hors PTZ* CAN 25 000 € et 1 500 € d'apport, hors Prêt Action Logement de 30 000 € à 1,5 % et hors PTZ National. *Prêt à Taux Zéro.
Les coûts sont estimés en fonction des caractéristiques de votre logement et pour une utilisation standard sur 5 usages : chauffage, eau chaude sanitaire, climatisation, éclairage, auxiliaires.
			entre
390 €
et
550 €
par an

obtenus par méthode Th-BCE 2012, estimées au logement, prix moyen des énergies indexés au 1er janvier 2021
Maison RDC de 71 m² habitables ( Option préau de 15m² possible ) . Maison 2 chambres avec un séjour salon cuisine de 38m². Plan modulable. Maison basse consommation RE 2020, chauffage avec rafraichissement . Contactez nous pour plus d'informations.
Habiter à Vouillé, 79230, Deux-Sèvres
Maisons du Marais, constructeur de maisons individuelles en 79, à Vouillé
			Maisons du Marais Niort
			4, rue M. Luther King
			Espace Mendès France II
			79000 Niort		
Tél. 05 49 33 22 11
- 
				
					
Maison 71 m2 avec terrain 429 m2
2 chambres
VOUILLÉ - 79
161 496 € - 
				
					
					Maison 79 m2 avec terrain 410 m2
3 chambres
VOUILLÉ - 79
176 025 € - 
				
					
					Maison 89 m2 avec terrain 382 m2
3 chambres
VOUILLÉ - 79
183 854 € - 
				
					
					Maison 87 m2 avec terrain 410 m2
3 chambres
VOUILLÉ - 79
210 638 € 
						Cette offre maison avec terrain à Vouillé (79230) a retenu votre attention.
			
			Renseignez le formulaire ci-contre :
			
			Je souhaite être contacté au sujet de l’annonce réf. TMFV002969679D1800 concernant une offre maison avec terrain à Vouillé. Voici mes coordonnées :
		
		    		    	
		    		    	
		    		    	
		    			