Faire construire
votre Maison de 133 m2
à Saint-Rémy (79410)
- Surface : 133 m2
- Nombre de pièces : 6
- Nombre de chambres : 5
- Garage : oui
- Surface du terrain : 507 m2
- Lotissement : non
Réf. TMFV002969382E83E6
312 628 €
Simulez votre crédit immobilier
ou
Votre mensualité sera de
€/mois
Montant de votre prêt
€
Coût assurance €
* avec une épargne conseillée de €
* Simulation hors PTZ* CAN 25 000 € et 1 500 € d'apport, hors Prêt Action Logement de 30 000 € à 1,5 % et hors PTZ National. *Prêt à Taux Zéro.
Les coûts sont estimés en fonction des caractéristiques de votre logement et pour une utilisation standard sur 5 usages : chauffage, eau chaude sanitaire, climatisation, éclairage, auxiliaires.

entre
430 €
et
610 €
par an

obtenus par méthode Th-BCE 2012, estimées au logement, prix moyen des énergies indexés au 1er janvier 2021
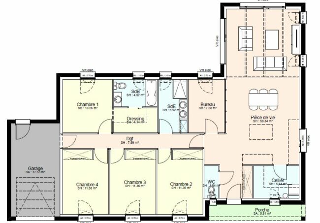
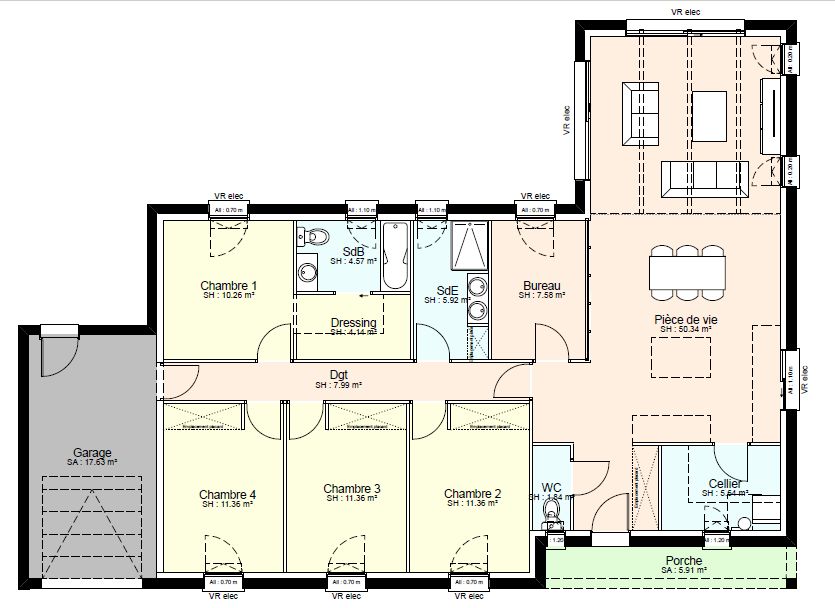
Maison RDC de 133 m² habitables et 18m² de garage. Maison 4 chambres et 1 bureau avec un séjour salon cuisine de 50m². Plan modulable. Maison basse consommation RE 2020, chauffage plancher chauffant. Contactez nous pour plus d'informations.
Habiter à Saint-Rémy, 79410, Deux-Sèvres
Maisons du Marais, constructeur de maisons individuelles en 79, à Saint-Rémy
Maisons du Marais Niort
4, rue M. Luther King
Espace Mendès France II
79000 Niort
Tél. 05 49 33 22 11
-
Maison 71 m2 avec terrain 507 m2
2 chambres
SAINT-RÉMY - 79
166 916 € -
Maison 83 m2 avec terrain 507 m2
3 chambres
SAINT-RÉMY - 79
219 976 € -
Maison 87 m2 avec terrain 600 m2
3 chambres
SAINT-RÉMY - 79
197 648 € -
Maison 90 m2 avec terrain 600 m2
3 chambres
SAINT-RÉMY - 79
202 139 €
Cette offre maison avec terrain à Saint-Rémy (79410) a retenu votre attention.
Renseignez le formulaire ci-contre :
Je souhaite être contacté au sujet de l’annonce réf. TMFV002969382E83E6 concernant une offre maison avec terrain à Saint-Rémy. Voici mes coordonnées :