Faire construire
votre Maison de 133 m2
à Saint-Christophe-sur-Roc (79220)
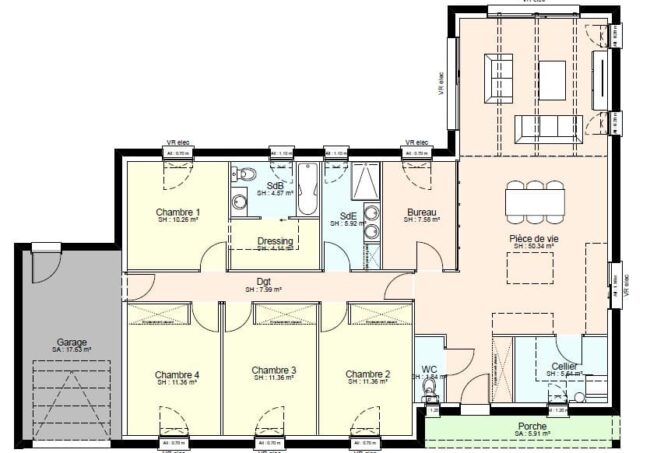
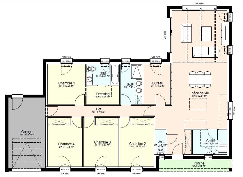
- Surface : 133 m2
- Nombre de pièces : 6
- Nombre de chambres : 5
- Garage : oui
- Surface du terrain : 647 m2
- Lotissement : non
Réf. TMFV00296918321BAA
286 978 €
Simulez votre crédit immobilier
ou
Votre mensualité sera de
€/mois
Montant de votre prêt
€
Coût assurance €
* avec une épargne conseillée de €
* Simulation hors PTZ* CAN 25 000 € et 1 500 € d'apport, hors Prêt Action Logement de 30 000 € à 1,5 % et hors PTZ National. *Prêt à Taux Zéro.
Les coûts sont estimés en fonction des caractéristiques de votre logement et pour une utilisation standard sur 5 usages : chauffage, eau chaude sanitaire, climatisation, éclairage, auxiliaires.

entre
430 €
et
610 €
par an

obtenus par méthode Th-BCE 2012, estimées au logement, prix moyen des énergies indexés au 1er janvier 2021
Maison RDC de 133 m² habitables et 18m² de garage. Maison 4 chambres et 1 bureau avec un séjour salon cuisine de 50m². Plan modulable. Maison basse consommation RE 2020, chauffage plancher chauffant. Contactez nous pour plus d'informations.
Habiter à Saint-Christophe-sur-Roc, 79220, Deux-Sèvres
Maisons du Marais, constructeur de maisons individuelles en 79, à Saint-Christophe-sur-Roc
Maisons du Marais Niort
4, rue M. Luther King
Espace Mendès France II
79000 Niort
Tél. 05 49 33 22 11
-
Maison 65 m2 avec terrain 647 m2
2 chambres
SAINT-CHRISTOPHE-SUR-ROC - 79
165 431 € -
Maison 89 m2 avec terrain 480 m2
3 chambres
SAINT-CHRISTOPHE-SUR-ROC - 79
159 048 € -
Maison 87 m2 avec terrain 480 m2
3 chambres
SAINT-CHRISTOPHE-SUR-ROC - 79
181 832 € -
Maison 89 m2 avec terrain 480 m2
3 chambres
SAINT-CHRISTOPHE-SUR-ROC - 79
174 679 €
Cette offre maison avec terrain à Saint-Christophe-sur-Roc (79220) a retenu votre attention.
Renseignez le formulaire ci-contre :
Je souhaite être contacté au sujet de l’annonce réf. TMFV00296918321BAA concernant une offre maison avec terrain à Saint-Christophe-sur-Roc. Voici mes coordonnées :