Faire construire
votre Maison de 79 m2
à Petosse (85570)
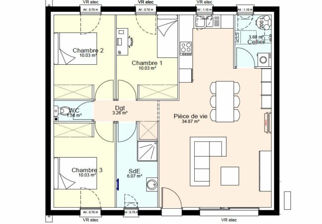
- Surface : 79 m2
- Nombre de pièces : 4
- Nombre de chambres : 3
- Garage : oui
- Surface du terrain : 422 m2
- Lotissement : non
Réf. TMMD0275368EB01A24
153 997 €
Simulez votre crédit immobilier
ou
Votre mensualité sera de
€/mois
Montant de votre prêt
€
Coût assurance €
* avec une épargne conseillée de €
* Simulation hors PTZ* CAN 25 000 € et 1 500 € d'apport, hors Prêt Action Logement de 30 000 € à 1,5 % et hors PTZ National. *Prêt à Taux Zéro.
Les coûts sont estimés en fonction des caractéristiques de votre logement et pour une utilisation standard sur 5 usages : chauffage, eau chaude sanitaire, climatisation, éclairage, auxiliaires.

entre
390 €
et
550 €
par an

obtenus par méthode Th-BCE 2012, estimées au logement, prix moyen des énergies indexés au 1er janvier 2021
La ligne EVOLUTION vous offre une maison plain-pied dès 79 m² habitables, pensée pour s’adapter à votre style de vie. Profitez d’une pièce de vie traversante à partir de 35m², baignée de lumière grâce à une grande baie vitrée, avec cuisine ouverte et cellier isolé pour plus de praticité. Ce modèle se compose de 3 chambres. À l’extérieur, choisissez un garage, un préau ou un carport attenant d’une surface de 15m², parfait pour stationner ou profiter des beaux jours.
Habiter à Petosse, 85570, Vendée
Maisons du Marais, constructeur de maisons individuelles en 85, à Petosse
Maisons du Marais La Rochelle
Résidence AZUREA
55 Boulevard Joffre
17000 La Rochelle
Tél. 05 46 30 38 80
-
Maison 89 m2 avec terrain 525 m2
3 chambres
PETOSSE - 85
171 139 € -
Maison 89 m2 avec terrain 422 m2
3 chambres
PETOSSE - 85
167 459 € -
Maison 89 m2 avec terrain 525 m2
3 chambres
PETOSSE - 85
186 770 € -
Maison 79 m2 avec terrain 525 m2
3 chambres
PETOSSE - 85
159 310 €
Cette offre maison avec terrain à Petosse (85570) a retenu votre attention.
Renseignez le formulaire ci-contre :
Je souhaite être contacté au sujet de l’annonce réf. TMMD0275368EB01A24 concernant une offre maison avec terrain à Petosse. Voici mes coordonnées :