Faire construire
votre Maison de 133 m2
à Cherveux (79410)
- Surface : 133 m2
- Nombre de pièces : 6
- Nombre de chambres : 5
- Garage : oui
- Surface du terrain : 551 m2
- Lotissement : non
Réf. TMFV00296924E11116
303 665 €
Simulez votre crédit immobilier
ou
Votre mensualité sera de
€/mois
Montant de votre prêt
€
Coût assurance €
* avec une épargne conseillée de €
* Simulation hors PTZ* CAN 25 000 € et 1 500 € d'apport, hors Prêt Action Logement de 30 000 € à 1,5 % et hors PTZ National. *Prêt à Taux Zéro.
Les coûts sont estimés en fonction des caractéristiques de votre logement et pour une utilisation standard sur 5 usages : chauffage, eau chaude sanitaire, climatisation, éclairage, auxiliaires.
entre
430 €
et
610 €
par an

obtenus par méthode Th-BCE 2012, estimées au logement, prix moyen des énergies indexés au 1er janvier 2021
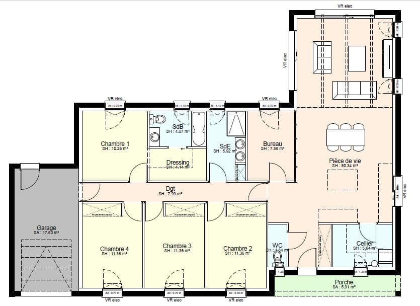
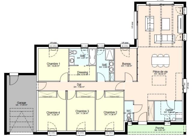
Maison RDC de 133 m² habitables et 18m² de garage. Maison 4 chambres et 1 bureau avec un séjour salon cuisine de 50m². Plan modulable. Maison basse consommation RE 2020, chauffage plancher chauffant. Contactez nous pour plus d'informations.
Habiter à Cherveux, 79410, Deux-Sèvres
Maisons du Marais, constructeur de maisons individuelles en 79, à Cherveux
Maisons du Marais Niort
4, rue M. Luther King
Espace Mendès France II
79000 Niort
Tél. 05 49 33 22 11
-
Maison 71 m2 avec terrain 512 m2
2 chambres
CHERVEUX - 79
161 950 € -
Maison 81 m2 avec terrain 551 m2
3 chambres
CHERVEUX - 79
167 481 € -
Maison 71 m2 avec terrain 551 m2
2 chambres
CHERVEUX - 79
157 953 € -
Maison 65 m2 avec terrain 551 m2
2 chambres
CHERVEUX - 79
182 118 €
Cette offre maison avec terrain à Cherveux (79410) a retenu votre attention.
Renseignez le formulaire ci-contre :
Je souhaite être contacté au sujet de l’annonce réf. TMFV00296924E11116 concernant une offre maison avec terrain à Cherveux. Voici mes coordonnées :
