Faire construire
votre Maison de 83 m2
à Augé (79400)
					
					- Surface : 83 m2
- Nombre de pièces : 4
- Nombre de chambres : 3
- Garage : oui
- Surface du terrain : 829 m2
- Lotissement : non
Réf. TMFV002969AE54C6CA
197 946 €
Simulez votre crédit immobilier
ou
Votre mensualité sera de
€/mois
Montant de votre prêt
€
Coût assurance €
* avec une épargne conseillée de €
* Simulation hors PTZ* CAN 25 000 € et 1 500 € d'apport, hors Prêt Action Logement de 30 000 € à 1,5 % et hors PTZ National. *Prêt à Taux Zéro.
Les coûts sont estimés en fonction des caractéristiques de votre logement et pour une utilisation standard sur 5 usages : chauffage, eau chaude sanitaire, climatisation, éclairage, auxiliaires.
 
			entre
390 €
et
550 €
par an

obtenus par méthode Th-BCE 2012, estimées au logement, prix moyen des énergies indexés au 1er janvier 2021
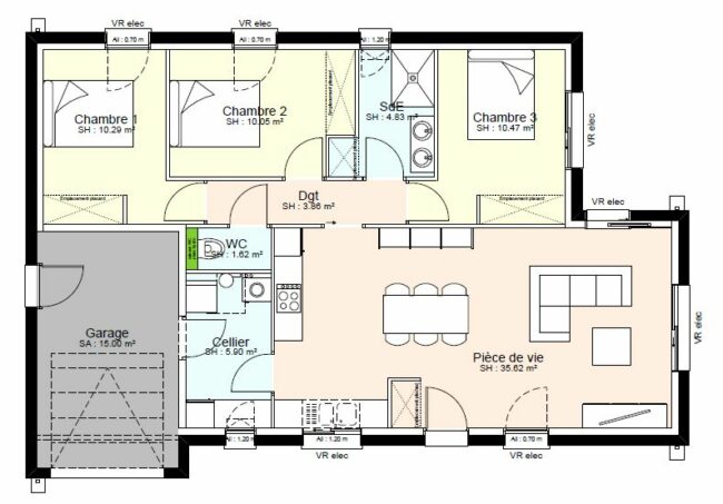
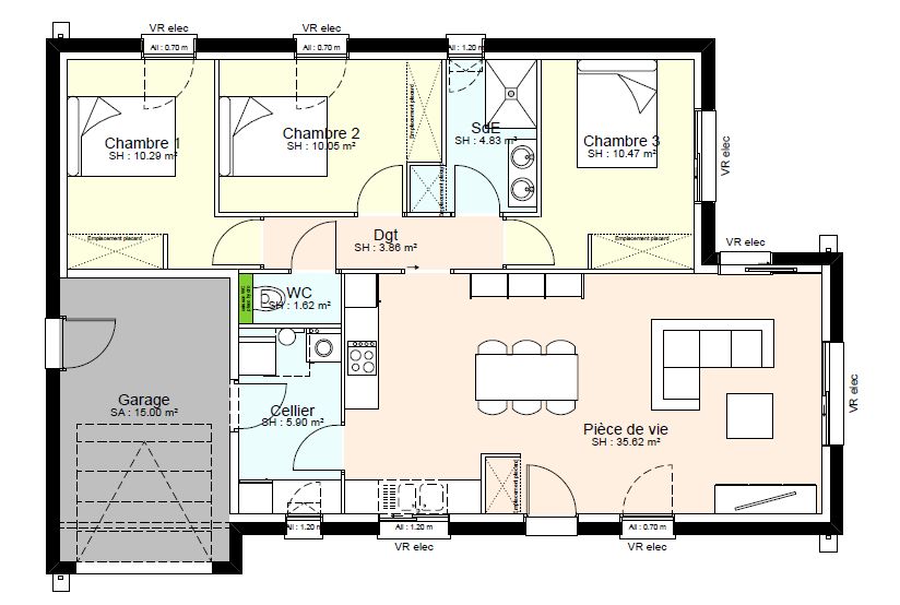
Maison RDC de 83 m² habitables et 15m² de garage. Maison 3 chambres avec un séjour salon cuisine de 35m². Plan modulable. Maison basse consommation RE 2020, chauffage plancher chauffant. Contactez nous pour plus d'informations.
Habiter à Augé, 79400, Deux-Sèvres
Maisons du Marais, constructeur de maisons individuelles en 79, à Augé
			Maisons du Marais Niort
			4, rue M. Luther King
			Espace Mendès France II
			79000 Niort		
Tél. 05 49 33 22 11
- 
				
					Maison 71 m2 avec terrain 829 m2 2 chambres AUGÉ - 79 145 886 €
- 
				
					  Maison 71 m2 avec terrain 683 m2 2 chambres AUGÉ - 79 137 896 €
- 
				
					  Maison 89 m2 avec terrain 683 m2 3 chambres AUGÉ - 79 171 985 €
- 
				
					Maison 65 m2 avec terrain 829 m2 2 chambres AUGÉ - 79 169 051 €
						Cette offre maison avec terrain à Augé (79400) a retenu votre attention.
			
			Renseignez le formulaire ci-contre :
			
			Je souhaite être contacté au sujet de l’annonce réf. TMFV002969AE54C6CA concernant une offre maison avec terrain à Augé. Voici mes coordonnées :
		
 
		    		    	 
		    		    	 
		    		    	 
		    			