Faire construire
votre Maison de 65 m2
à Aiffres (79230)
					
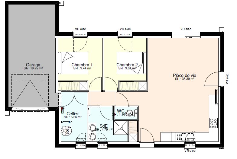
					- Surface : 65 m2
 - Nombre de pièces : 3
 - Nombre de chambres : 2
 - Garage : oui
 - Surface du terrain : 733 m2
 - Lotissement : non
 
Réf. TMED002969127A23D6
193 981 €
Simulez votre crédit immobilier
ou
Votre mensualité sera de
€/mois
Montant de votre prêt
€
Coût assurance €
* avec une épargne conseillée de €
* Simulation hors PTZ* CAN 25 000 € et 1 500 € d'apport, hors Prêt Action Logement de 30 000 € à 1,5 % et hors PTZ National. *Prêt à Taux Zéro.
Les coûts sont estimés en fonction des caractéristiques de votre logement et pour une utilisation standard sur 5 usages : chauffage, eau chaude sanitaire, climatisation, éclairage, auxiliaires.
			entre
390 €
et
550 €
par an

obtenus par méthode Th-BCE 2012, estimées au logement, prix moyen des énergies indexés au 1er janvier 2021
Maison RDC de 65 m² habitables et 20m² de garage. Maison 2 chambres avec un séjour salon cuisine de 36m². Plan modulable. Maison basse consommation RE 2020, chauffage avec rafraichissement . Contactez nous pour plus d'informations.
Habiter à Aiffres, 79230, Deux-Sèvres
Maisons du Marais, constructeur de maisons individuelles en 79, à Aiffres
			Maisons du Marais Niort
			4, rue M. Luther King
			Espace Mendès France II
			79000 Niort		
Tél. 05 49 33 22 11
- 
				
					
					Maison 93 m2 avec terrain 331 m2
4 chambres
AIFFRES - 79
205 751 € - 
				
					
					Maison 93 m2 avec terrain 338 m2
4 chambres
AIFFRES - 79
189 218 € - 
				
					
					Maison 93 m2 avec terrain 338 m2
4 chambres
AIFFRES - 79
190 973 € - 
				
					
					Maison 89 m2 avec terrain 338 m2
3 chambres
AIFFRES - 79
172 128 € 
						Cette offre maison avec terrain à Aiffres (79230) a retenu votre attention.
			
			Renseignez le formulaire ci-contre :
			
			Je souhaite être contacté au sujet de l’annonce réf. TMED002969127A23D6 concernant une offre maison avec terrain à Aiffres. Voici mes coordonnées :
		
		    		    	
		    		    	
		    		    	
		    			